Baulücke Mainz-Hechtsheim

Eckdaten

  • Objekt-ID:
    5978
  • Lage:
    55129 Mainz / Hechtsheim
  • Immobilienart:
    Einfamilienhaus
  • Grundstücksfläche:
    ca. 385,00 m²
  • Nutzfläche:
    ca. 90,00 m²
  • Baujahr:
    1975
  • Kaufpreis:
    385.000,00 €
  • Käufercourtage:
    Provision inklusive MwSt.: 3,57 % vom Kaufpreis inkl. gesetzlicher MwSt.

Objektbeschreibung

Der wahre Wert dieser Immobilie liegt im Entwicklungspotenzial. In begehrter Lage von Mainz-Hechtsheim bietet das ca. 385 m² große Grundstück eine seltene Gelegenheit zur Neubebauung. Der bestehende Altbau aus dem Jahr 1975 ist wirtschaftlich nicht sanierungsfähig – im Fokus stehen die hervorragende Lage und die Möglichkeit, ohne Einschränkungen durch Denkmalschutz eigene architektonische Konzepte zu realisieren.

Das Angebot richtet sich an Investoren, Bauträger und Käufer mit Weitblick, die das Potenzial dieses Standorts gezielt nutzen möchten.

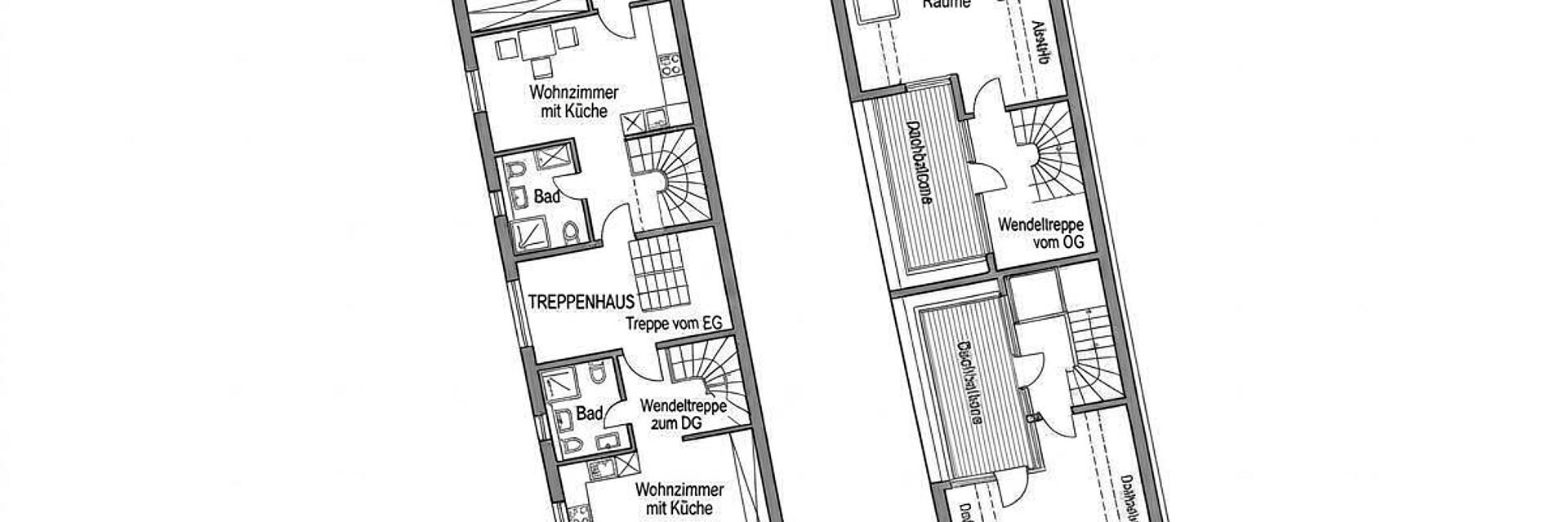
Eine durchdachte Projektierung liegt bereits vor und zeigt die mögliche Entwicklung: Geplant ist ein modernes Mehrfamilienhaus mit zwei kompakten Wohneinheiten im Erdgeschoss (je ca. 50 m²) sowie zwei großzügigen Maisonette-Wohnungen im Ober- und Dachgeschoss mit je ca. 65m². Diese bieten attraktive Grundrisse und private Dachterrassen mit Blick über Hechtsheim.

Die Immobilie wird durch eine ca. 60 m² große, massiv gebaute Halle ergänzt, die derzeit als Fotostudio ausgebaut ist. Mit überschaubarem Aufwand lässt sich diese Fläche in eine Parkhalle für bis zu vier Fahrzeuge umgestalten und bietet somit erhebliches Potenzial sowie einen klaren Mehrwert für das Gesamtprojekt.

Hinweis: Die dargestellte Bebauung ist eine unverbindliche Projektidee. Die baurechtliche Genehmigungsfähigkeit ist vom Käufer eigenständig zu prüfen. Eine Haftung wird nicht übernommen.

Ausstattung

- Erstklassige Bodenlage in einer der gefragtesten Ecken von Mainz-Hechtsheim

- 385 m² großes Grundstück mit idealer Geometrie für eine Neubebauung

- Völlige Planungsfreiheit – absolut frei von Denkmalschutz oder historischen Auflagen

Ausführliche Informationen erhalten Sie mit unserem Exposé oder unter www.heming-immobilien.de

  • Keller

Kontaktformular

form

Lage

Das Grundstück besticht durch seine absolute Ruhelage innerhalb des gewachsenen Kerns von Mainz-Hechtsheim. Hechtsheim zählt zu den gefragtesten Stadtteilen von Mainz und verbindet charmantes Flair mit einer erstklassigen urbanen Infrastruktur.

Die Anbindung ist hervorragend: In wenigen Minuten erreichen Sie sowohl die Straßenbahn in die Mainzer City als auch die Autobahnanschlüsse zur A60 und A63. Geschäfte des täglichen Bedarfs, Ärzte und Schulen sind fußläufig erreichbar. Diese Kombination aus hoher Lebensqualität und exzellenter Erreichbarkeit macht den Standort zu einer sicheren Wahl für nachhaltige Immobilieninvestments.